Fantástica Propiedad Exterior para Reformar en Trafalgar
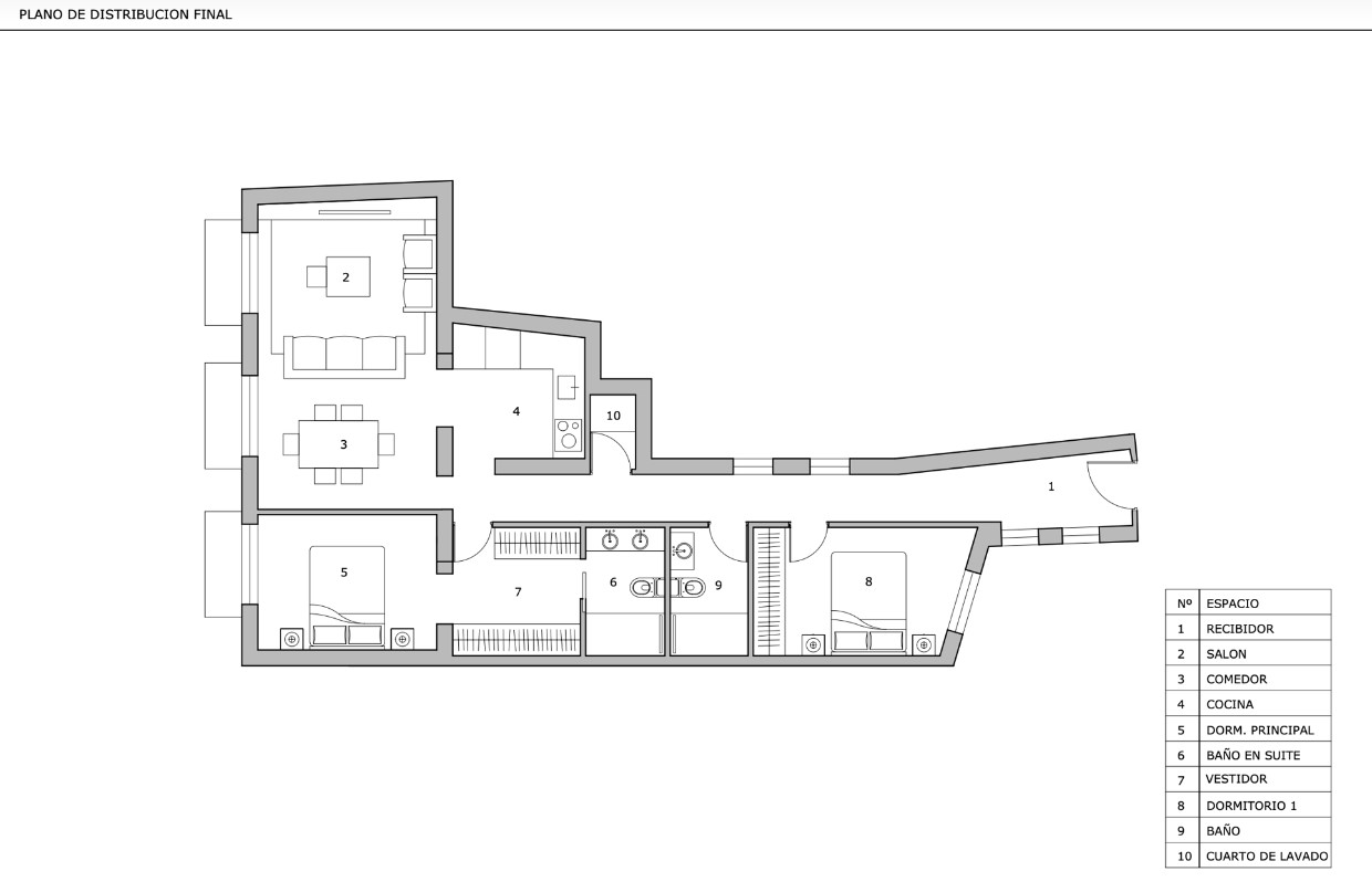
Baco Real Estates presenta esta exclusiva propiedad exterior que cuenta con una superficie de 112 m2 catastrales y ofrece techos de 3 metros de altura, proporcionando una sensación de amplitud y luminosidad. La propiedad cuenta con tres balcones que dan a la calle y que están orientados al sur, permitiendo que la luz natural inunde el espacio. Distribuido en salón exterior con balcones a la calle principal, una excelente cocina de primera calidad, dormitorio principal con cuarto de baño en suite y vestidor, más un segundo dormitorio y un cuarto de baño.
La propiedad se encuentra en una finca clásica, cuyo edificio hace esquina. La fachadas exteriores y los patios se han rehabilitado y pintado recientemente, dejándolas con un aspecto sensacional. Esta finca tranquila se sitúa en una calle de un solo sentido, y tiene el beneficio adicional de un conserje y un Inspección de Evaluación de Edificios (ITE) favorable. También se beneficia de un patio interior en buen estado.
Trafalgar es uno de los barrios más antiguos y demandados de Madrid, a poca distancia encontraremos las plazas de Olavide y Santa Bárbara, conocidas por su vibrante ambiente y su excelente oferta gastronómica. Este barrio familiar cuenta con una amplia variedad de servicios, incluyendo colegios y hospitales, y está bien comunicado gracias a su proximidad a la estación de metro de Alonso Martínez.
- 112 m2 catastrales
- Techos de 3 mts
- 3 balcones a la calle
- Orientación Sur
- Patio interior en buen estado
Finca
- Finca Clásica con buena calidad de construcción
- Calle con poco tránsito rodado y poco ruidosa
- Estado de finca interior y exterior en buen estado
- Conserje
- ITE Favorable
Precio:
- Propiedad: 790.000 €
- Reforma: 142.542 € + IVA
- Ibi: 600 EUR
- Comunidad: 160 EUR (mes)






